- Бренды:
- Все бренды
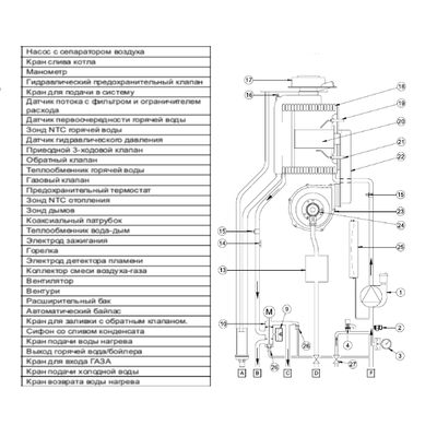
Модель настенного газового котла Baxi (Бакси) LUNA DUO-TEC MP+ 1.130 оснащена модуляционным циркуляционным насосом с электронным управлением, поэтому отличается энергоэффективность и простотой в эксплуатации. Прибор имеет возможность недельного программирования работы, что делает его практичным в использовании.
Особенности и преимущества:
- Сохраняют номинальную мощность при падении входного давления газа до 5 мбар.
- Коэффициент модуляции мощности — 1:5.
- Непрерывная электронная модуляция пламени в режимах отопления и ГВС.
- Пониженное содержание СО и NOx.
- Горелка из нержавеющей стали AISI 316L с предварительным смешением газа и воздуха.
- Возможна перенастройка для работы на сжиженном газе.
- Энергосберегающий модуляционный циркуляционный насос с электронным управлением и встроенным автоматическим воздухоотводчиком.
- Первичный теплообменник из нержавеющей стали AISI 316L.
- Постциркуляция насоса.
- Возможность подключения внешнего накопительного бойлера для горячей воды.
- Новая панель управления с широким дисплеем.
- Диапазон регулирования температуры в системе отопления 25-80°С.
- Два датчика температуры отопления на подаче и на обратке.
- Встроенная погодозависимая автоматика.
- Возможность недельного программирования режима работы.
- Самоадаптация погодозависимой автоматики.
- Регулирование и автоматическое поддержание заданной температуры в контурах отопления и ГВС.
- Цифровая индикация температуры и давления.
- Возможность управления разнотемпературными зональными системами.
- Возможность установки в каскаде до 16 котлов.
- Электронный манометр — срабатывает при падении давления воды в 2 этапа: предупреждение и блокировка (0,5 бар).
- Управление каскадом до 16 котлов.
- Электронная система самодиагностики и запоминание последних ошибок в работе.
- Ионизационный контроль пламени.
- Системы защиты от блокировки насоса и трехходового клапана.
- Защитный термостат от перегрева теплоносителя в первичном теплообменнике.
- Контроль безопасного удаления продуктов сгорания при помощи датчика NTC.
- Предохранительный клапан в контуре отопления (3 бар).
- Система защиты от замерзания в контурах отопления и ГВС.
Серия LUNA DUO-TEC MP+ включает котлоаппараты настенного типа с мощностным коэффициентов 1 к 5. Серия разработана компанией Baxi, оборудование которой пользуется большой популярностью среди российских потребителей, так как отличается низкими энергозатратами и оптимальной производительностью, легкой установкой и абсолютно безопасным использованием.
Выгодная цена на котлы отопления и в частности настенный газовый котел baxi luna duo-tec mp+ 1.130 обусловлена, прежде всего, огромными запасами продукции на собственном складском хранении, сотрудничеством с производителями напрямую и большими партиями поставок.
Купить настенный газовый котел baxi luna duo-tec mp+ 1.130 возможно как, самовывозом со склада, так и доставкой по Нижнему Новгороду и области. Осуществляем отправку такой продукции как, котлы отопления, а так же другого отопительного, водогрейного и газового оборудования по всей России через транспортные компании или СДЕК. На все продаваемое отопительное и газовое оборудование имеются паспорт производителя, сертификат соответствия и качества.
